"Partir de Zéro"
Création d’une résidence multi-générationnelle sur 1 132 m², avec des appartements privés pour chaque famille et un jardin partagé au cœur de la vie familiale.


Description du projet
Le client possède un terrain de 1 132 m² dans un emplacement privilégié, offrant l’opportunité de créer quelque chose de totalement nouveau. Sa vision est de bâtir une résidence où trois générations de la famille peuvent vivre côte à côte en harmonie. Le projet prend la forme d’un immeuble résidentiel partagé, conçu pour la copropriété.
Chaque unité familiale disposera de son propre appartement privé — un logement personnel pouvant servir de résidence principale ou secondaire. Parallèlement, le jardin constituera le cœur de la propriété, un espace partagé où toute la famille élargie pourra se rassembler, se connecter et célébrer la vie ensemble.
Aperçu de la propriété
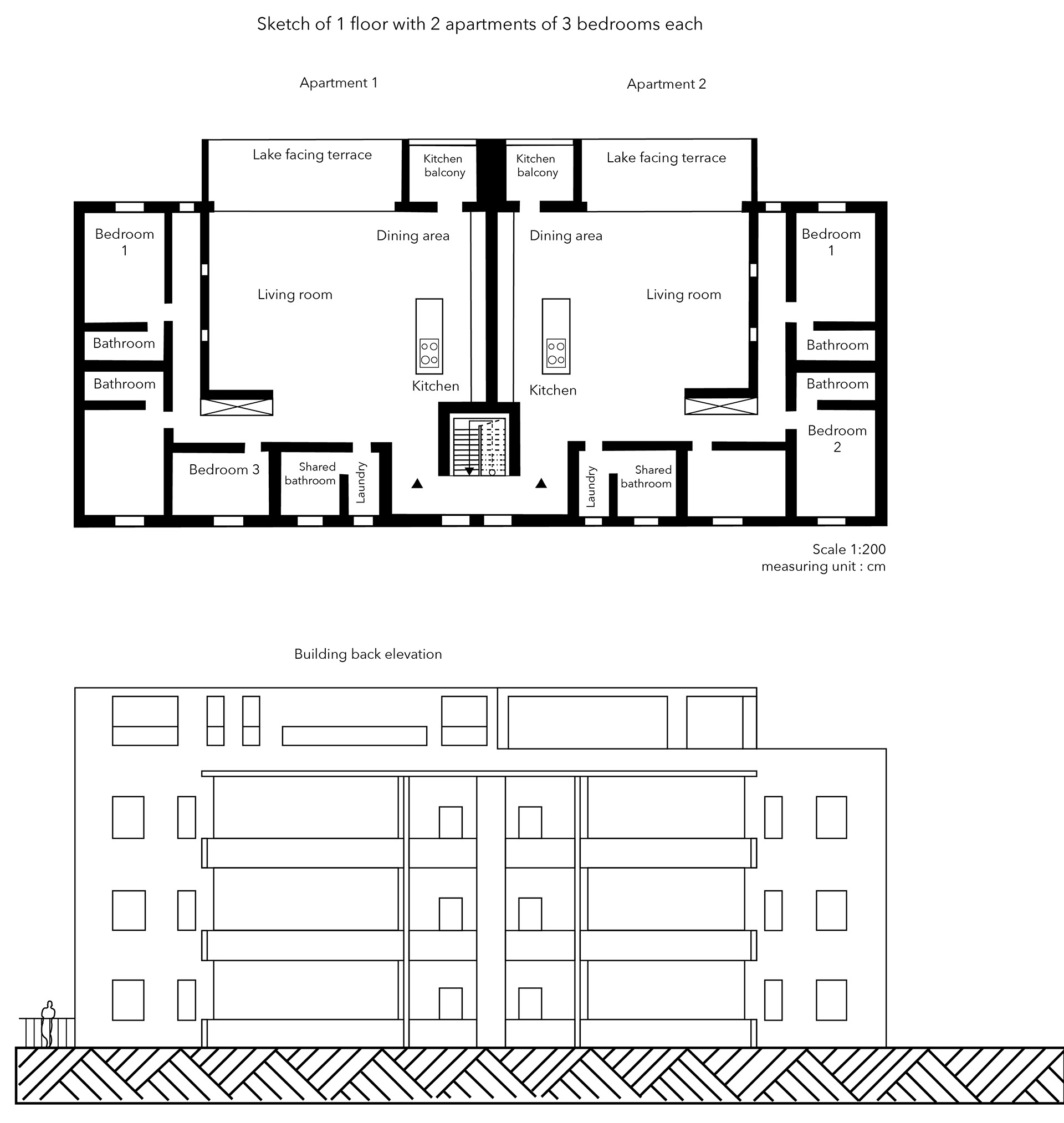
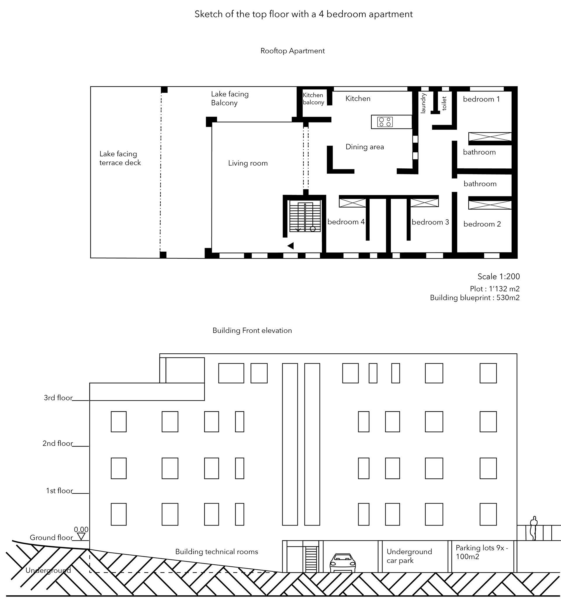
7 appartements de 3 chambres, dont au moins 2 en suite par unité
Balcons avec vue sur le lac et balcon-cuisine pour chaque appartement
Salle de bain commune et buanderie dédiée par unité
Minimum 1 place de parking par appartement
Penthouse avec vue panoramique sur le paysage
Profil & Vision
Un patriarche souhaite réunir enfants, conjoints et petits-enfants dans une résidence commune qui allie intimité et convivialité. Son ambition : créer une maison familiale intemporelle, à la fois pratique, chaleureuse et porteuse d’héritage.
Priorités de conception
Préserver l’équilibre entre intimité et liens familiaux
Offrir confort et modernité grâce à des plans ouverts et fonctionnels
Maximiser la lumière naturelle, les vues sur le lac et le jardin partagé
Assurer flexibilité entre résidence principale et secondaire
Inscrire la résidence dans la durée, comme symbole de patrimoine familial
