"Dessin Technique"
Compétences : précision, visualisation spatiale et connaissance de la construction
Réalisation de dessins architecturaux précis en respectant la terminologie et les conventions
Traduction d’espaces tridimensionnels en projections orthogonales claires, assurant une communication efficace de l’intention de conception
Application des principes de construction pour créer des solutions de projet réalisables et cohérentes
Le Trio Rectangulaire
Cahier des charges
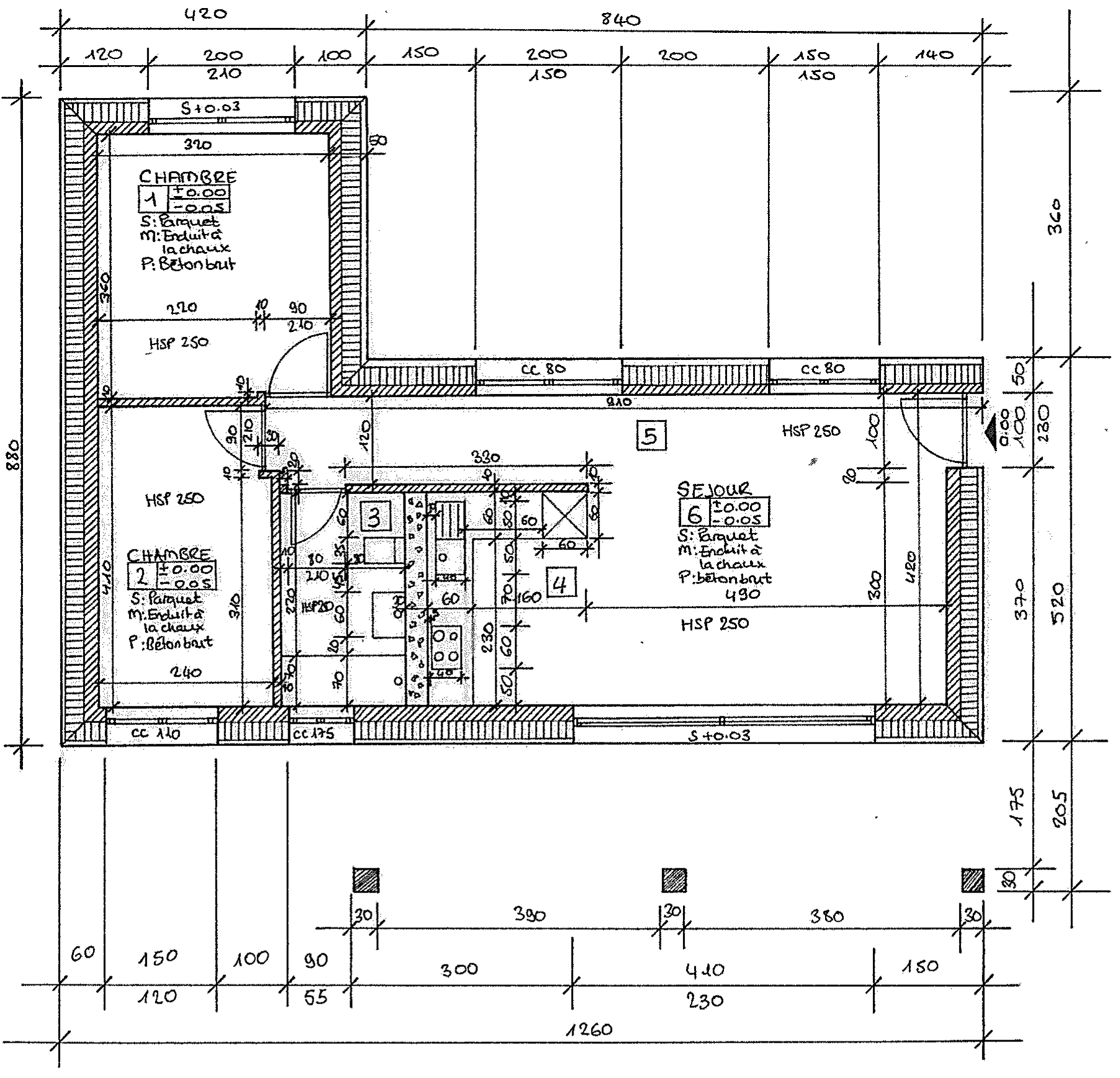
Conception d’un logement résidentiel comprenant trois unités rectangulaires de dimensions variées. Le logement doit inclure une salle de bains et une kitchenette, avec une capacité minimale de deux occupants.
Solution de conception
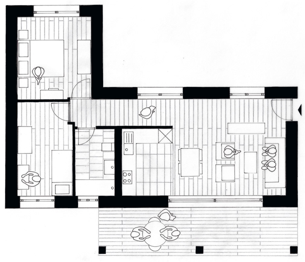
Une résidence secondaire nichée en montagne, occupée par une famille de trois personnes. Cette charmante maison en bois de 56 m² comprend deux chambres, un salon spacieux avec cuisine ouverte et une grande terrasse. La terrasse offre un vaste espace extérieur, permettant une parfaite harmonie entre intérieur et extérieur, notamment par beau temps.



