"Projet de fin d'études"
La Résidence Séminaire

Aperçu de la propriété
Ce bâtiment rural est l’une des dépendances du presbytère de Cotterd-Bellerive, un petit village vaudois surplombant le lac de Morat.
Construit au XVIIIᵉ siècle, il se compose d’une grange, d’une maisonnette abritant le four et d’un auvent situé à l’ouest du presbytère.
Cahier des charges
Reconvertir la dépendance d’un presbytère des années 1930 en boutique-hôtel, en préservant les caractéristiques architecturales et l’ambiance d’origine, tout en intégrant des équipements modernes et une expérience raffinée pour les hôtes.
Inspiration : Comme à la maison
Un lieu où les frontières entre espace professionnel et personnel s’estompent, où confort et fonctionnalité se rencontrent pour que chaque séjour paraisse naturellement familier.
Concept : Retraite exécutive
Un séjour premium en pension complète, conçu pour enrichir les séjours professionnels, où architecture et expérience s’allient pour encourager la collaboration, renforcer l’esprit d’équipe et soutenir le bien-être individuel.
Public cible
Comités de direction et équipes d’entreprise
Objectif : sessions de travail productives et team-building immersif en pension complète
Capacité : 10 participants
Valeurs clés : Confort, Technologie, Cohésion
Priorités de conception
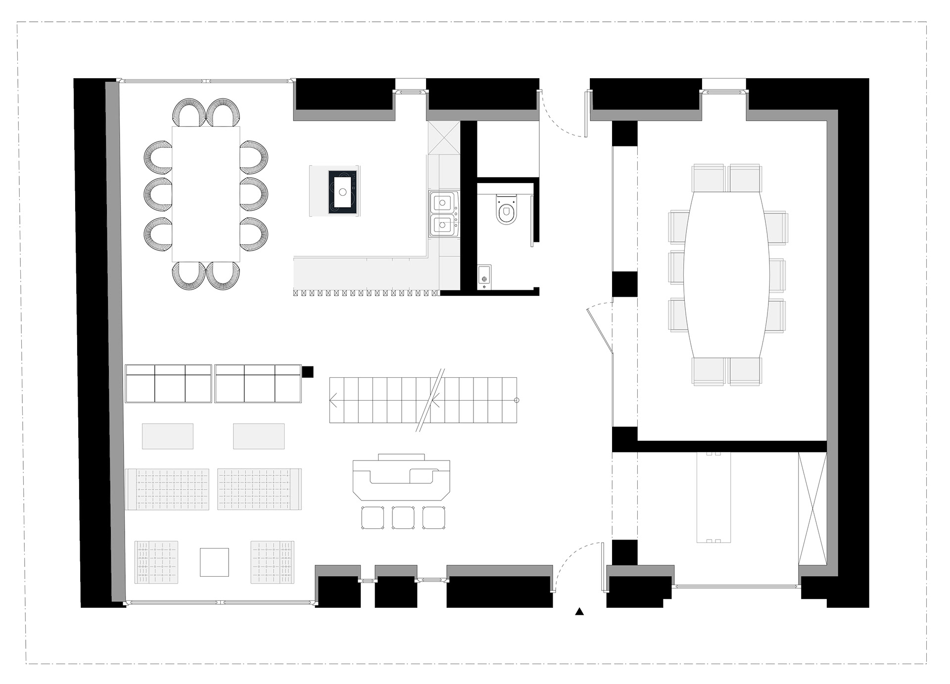
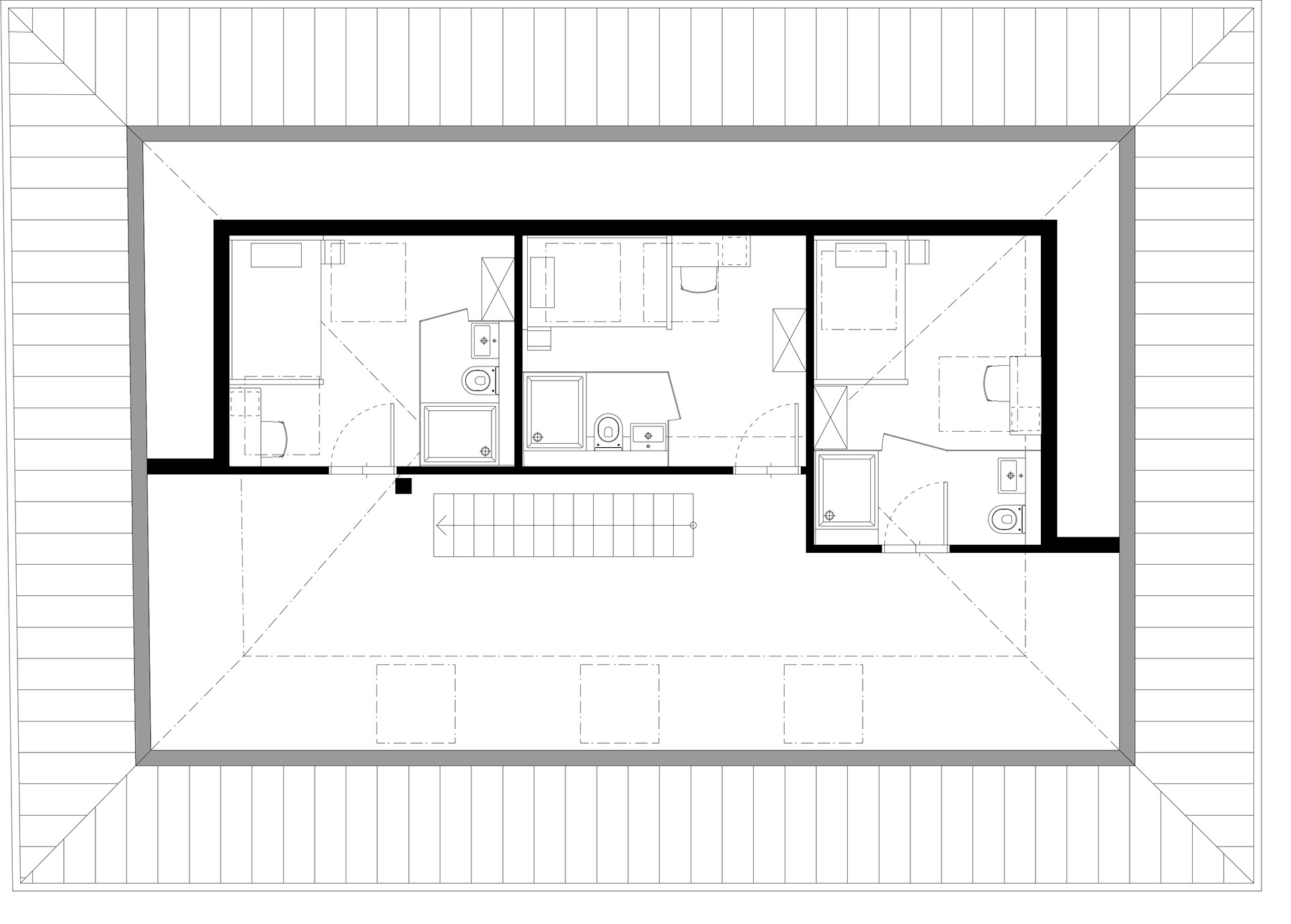
Le boutique-hôtel est une résidence professionnelle de 260 m² pouvant accueillir 10 résidents, répartis sur 3 niveaux.
Rez-de-chaussée : l’espace de jour adopte un plan ouvert fluide, pensé comme le cœur social de la retraite. Cet espace commun favorise collaboration, cohésion et échanges informels, tout en permettant à la fois travail et détente.
Étages supérieurs : l’espace nuit comprend dix chambres individuelles identiques avec salle de bains privative, situées au 1er étage et dans les combles. Chaque chambre de 9 à 11 m², parfaitement équipée, offre l’intimité et le repos nécessaires pour équilibrer l’expérience collective avec un espace personnel de ressourcement.








