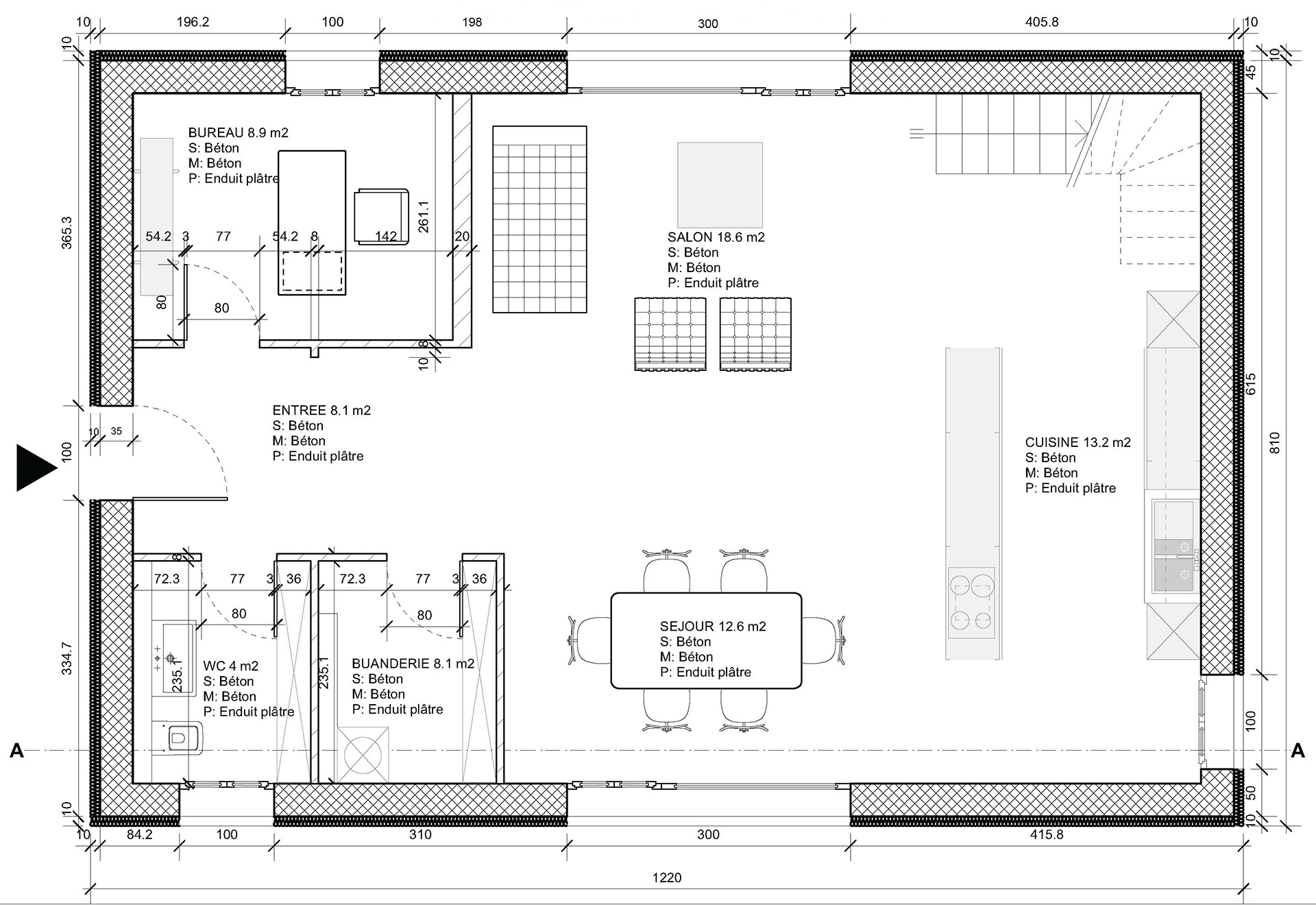
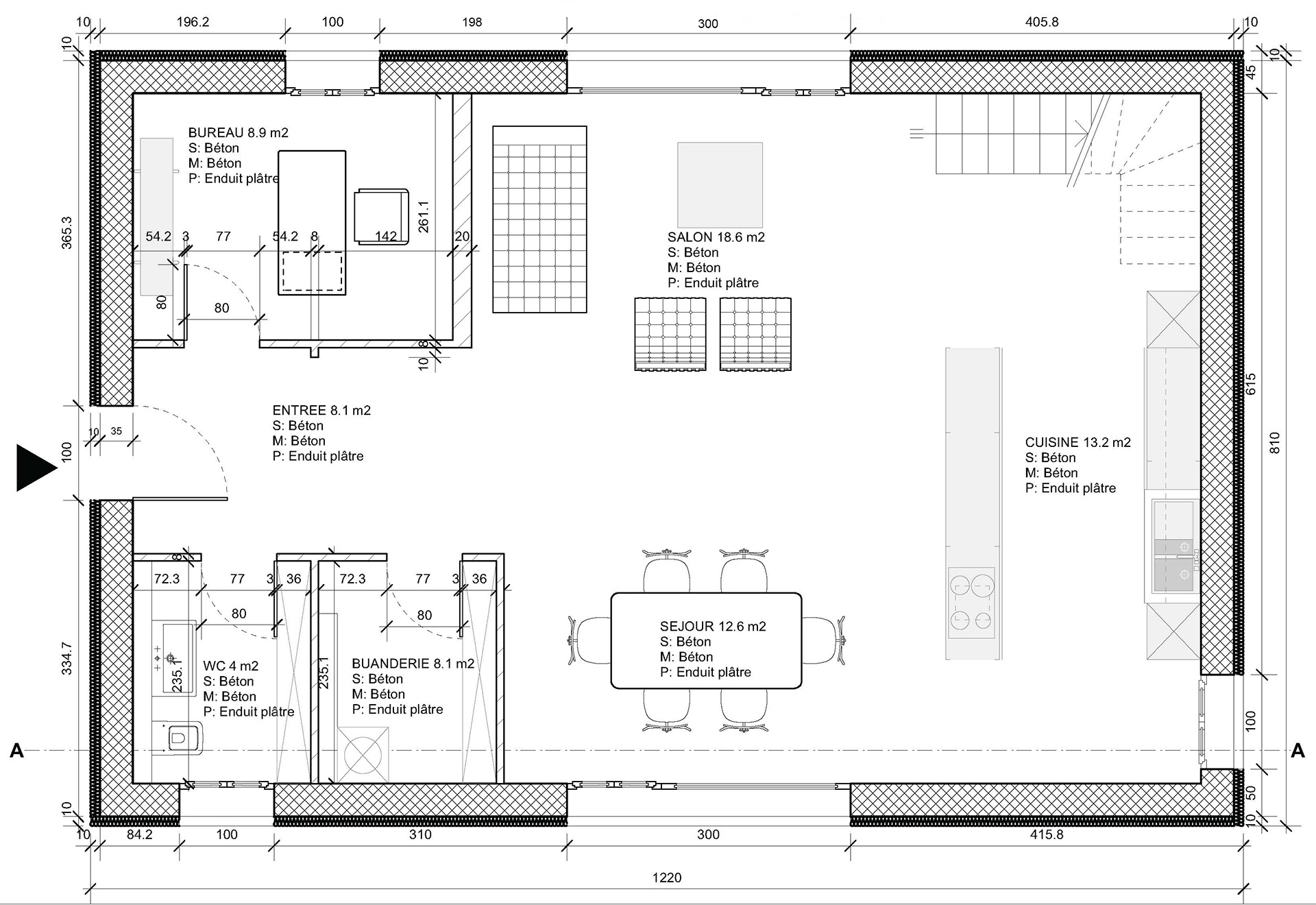
"Rendus CAO"
Création de rendus 2D et 3D avec Vectorworks Architect

Chaleur moderne en béton et bois
Rez-de-chaussée réinventé d’une maison de ville à deux étages, combinant bureau fonctionnel, WC discret et salon-cuisine ouvert. Un dialogue audacieux entre béton brut et bois raffiné unit tous les espaces.




