"Renaissance"
Transformer les revers en un intérieur sain et équilibré
Conçue au début des années 2000 mais laissée inachevée, cette maison familiale a été rénovée comme un véritable défi technique et personnel : réparer, repenser et concrétiser la vision des clients. Le résultat : un intérieur harmonieux où résilience et design réfléchi se rencontrent.

Aperçu de la propriété
Située sur un généreux terrain de 3 600 m², cette propriété offre à la fois espace et polyvalence.
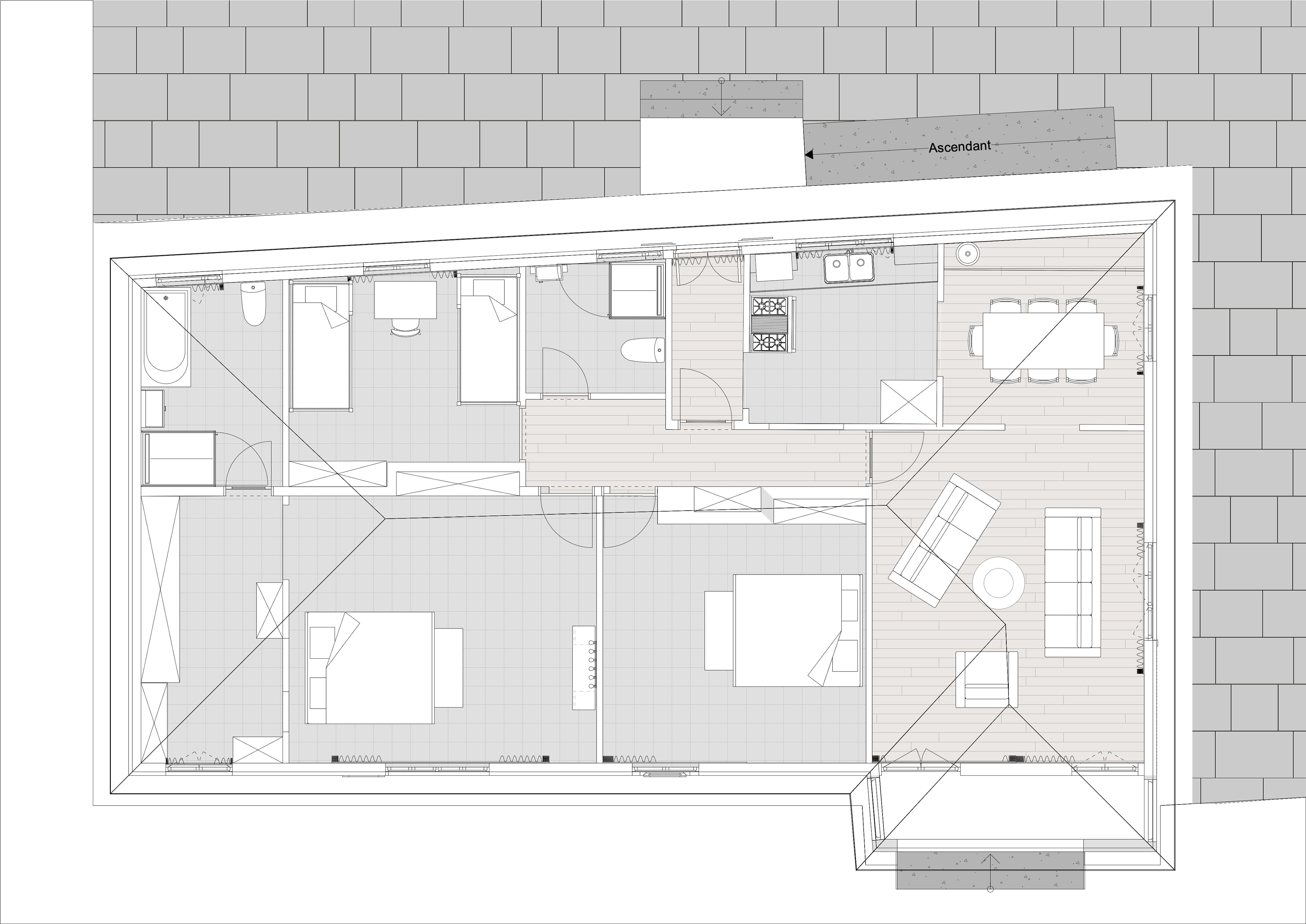
Maison principale – 150 m²
Comprenant une cuisine, une salle à manger, trois chambres, deux salles de bains et une véranda ouverte sur l’extérieur.
Comprenant une cuisine, une salle à manger, trois chambres, deux salles de bains et une véranda ouverte sur l’extérieur.
Annexe – 54 m²
Conçue comme un espace de vie indépendant avec cuisine, une chambre et une chambre avec salle de bains attenante.
Conçue comme un espace de vie indépendant avec cuisine, une chambre et une chambre avec salle de bains attenante.
Espaces extérieurs – 3 380 m²
Un cadre paysager comprenant une allée, un jardin et des plantations.
Un cadre paysager comprenant une allée, un jardin et des plantations.
Avec un sol argilo-sableux et limoneux, le terrain offre à la fois stabilité et un fort potentiel pour le jardinage et l’aménagement paysager.
Profil et vision des clients
Actifs et pleins de vie, les clients sont un couple dans la soixantaine qui trouve du plaisir à faire du sport, cuisiner, jardiner et profiter des espaces extérieurs. Après une expérience passée difficile, ils ont abordé ce projet avec prudence, recherchant une maison alliant accessibilité, faible entretien et design contemporain. L’utilisation de matériaux durables et faciles à entretenir a été essentielle pour créer un espace accueillant et fonctionnel pendant de nombreuses années.
Résumé de l’évaluation du projet
La propriété bénéficie d’une structure solide en béton, d’une base vierge sans aménagements intérieurs et d’un environnement extérieur favorable. La flexibilité dans le calendrier du projet permet également de mener une rénovation réfléchie.
Les défis incluent des défauts électriques, de plomberie, de drainage, de toiture et de contrôle de l’humidité, qui doivent tous être corrigés pour garantir la sécurité et la durabilité de la maison.
Malgré ces problèmes, de solides opportunités existent grâce à des partenaires locaux fiables et à la disponibilité d’une main-d’œuvre qualifiée. Les principaux risques restent la pandémie mondiale, les pénuries de matériaux et les complexités liées à la gestion du projet à distance.
Priorités de conception
Résoudre les défauts techniques pour garantir une structure saine et habitable
Intégrer des matériaux durables et faciles à entretenir pour assurer la performance à long terme
Créer des intérieurs contemporains et fonctionnels adaptés au mode de vie des clients
Maximiser la connexion entre espaces intérieurs et extérieurs, en tirant parti du vaste terrain
Planifier avec flexibilité pour tenir compte des contraintes d’approvisionnement et de calendrier










